LS型螺旋输送机|LS螺旋输送机-河北古瑞得环保LS型螺旋输送机操作方便

河北古瑞得
热线电话
13127337163
13722731800
热门点击: 电捕焦油器|脉冲袋式除尘器|矿山布袋单机除尘器|滤筒除尘器|水喷淋塔废气净化器|LS型螺旋输送机|输送设备|锅炉布袋除尘器|埋刮板输送机|
LS型螺旋输送机-LS螺旋输送机

LS型螺旋输送机

LS型螺旋输送机采用的是螺旋的持续转动性能把物料在机体内推动到尾端来输送的,LS螺旋输送机的轴承选的是滑动轴承,安装的有防尘密封的装置,输送机的适应性强,外壳采用无缝钢管制作,端部采用法兰互相连接成一体,刚性好。
产地:河北省>泊头市
供应商:乐发Vll
点击这里给我发消息
技术咨询热线:13127337163

LS型螺旋输送机详细内容介绍

<strong>LS型螺旋输送机</strong>
<strong>LS型螺旋输送机</strong>
【产品介绍】
LS型螺旋输送机是利用旋转的螺旋将被输送的物料沿固定的机壳内推移而进行输送工作,头部及尾部轴承移至壳体外,吊轴承采用滑动轴承设有防尘密封装置,轴瓦一般采用粉末冶金,输送水泥采用毛毡轴瓦,吊轴和螺旋轴采用滑块连接。
【产品特点】
1.LS型螺旋输送机承载能力大、安全可靠。
2.适应性强、安装维修方便、寿命长。
3.整机体积小、转速高、确保快速均匀输送。
4.密封性好、外壳采用无缝钢管制作,端部采用法兰互相连接成一体,刚性好。
LS型螺旋输送机
 
LS型螺旋输送机
LS型螺旋输送机
LS型螺旋输送机
LS型螺旋输送机
LS型螺旋输送机
 
【应用范围】
LS型螺旋输送机是工农业各部门机械化运输工作的主要机组,可使运输工作减轻劳动强度,提高工作效率,应用范围很广。适用于各行业,如建材、化工、电力、冶金、煤炭、粮食等行业,适用于水平或倾斜输送粉状、粒状和小块状物料,如煤、灰、渣、水泥、粮食等,物料温度小于200℃。螺旋机不适于输送易变质的、粘性大的、易结块的物料。
LS型螺旋输送机应用范围
【布置形式】
一台LS型螺旋输送机通常由螺旋机本体、进出装置、驱动装置三大部分组成。
螺旋机本体由头节、中间节、尾节三种组成。一般情况下,出厂总装时将中间节按长度长短依次排列,较长的中间节靠近头节,相同 长度的中间节则挨在一起,如果有特殊要求,则在订货时给出排列顺序。
在头节内装有支推轴承承受轴向力,在中间节和尾节内装有用轴承支承螺旋轴,此外,在尾节内还装有可轴向移动的径向轴承以补 偿螺旋轴长度的误差和适应温度的变化。螺旋面的形式有实体螺旋(S制法)和带式螺旋(D制法)两种。各螺旋轴之间采用法兰式联接, 确保了联接轴的互换性,便于维修。
机盖为瓦片式并用盖扣夹紧在机壳上,若需改进密封性能,用户可自行在机盖与机壳间加防水粗帆布。
进、出料装置有进料口,方型出料口,手推式出料口,齿条式出料口四种。由用户在使用现场在机体上开口焊接。布置进、出料口 位置时应注意确保料口至端部的距离,同时避免料口与吊轴承加油杯、机壳联接法兰、底座等相碰。
驱动装置有ZQ系列减速器+Y系列电动机,YTC齿轮减速电机两种。
古瑞得主营产品
古瑞得主营产品
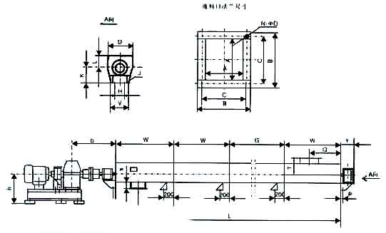
【安装示意图】
LS型螺旋输送机
【规格尺寸】
<a href='/lsxlxssj.html'>LS型螺旋输送机</a>参数
LS型<a href='/sssbxl.html'>螺旋输送机</a>
古瑞得联系方式
 
乐发Vll简介|产品目录|除尘器|电捕焦油器|废气处理设备|工程案例|采购指南|产品资讯|联系方式| 网站地图
公司名称:乐发Vll 公司地址:河北省沧州市泊头市齐桥镇李码头村 电话:0317-8315215 传真:0317-8315215  
手机:13127337163 网址:http://www.mdsmf.com 
乐发Vll 2011(C)版权所有 并对网站所有内容保留解释权 冀ICP备2021024158号-1 

冀公网安备13098102000620 号

PowerBy:速贝·网搜宝 网站建设:中科四方 技术支持:速贝微博